2022-12-19調溫除濕機與管道除濕機原理及應用領域介紹
調溫除濕機用蒸發器來給空氣降溫除濕,并回收系統的冷凝熱,彌補空氣中因為冷卻除濕時散失的熱量,是一種高效節能的除濕方式,已經廣泛應用于國防工程、人防工程、煙草及石化行業、地鐵車站、航天領域凈化工程、實驗室、電訊器材室、檔案室、食品房、制藥或膠片車間、特種玻璃制造、糧食、木材等的除濕干燥和高濕空間的除濕
了解詳情安詩曼電器
手機:133-6050-3273
微信:133-6050-3273
地址:廣東深圳坪山區青松西路8號鴻合科技園

調溫除濕機用蒸發器來給空氣降溫除濕,并回收系統的冷凝熱,彌補空氣中因為冷卻除濕時散失的熱量,是一種高效節能的除濕方式,已經廣泛應用于國防工程、人防工程、煙草及石化行業、地鐵車站、航天領域凈化工程、實驗室、電訊器材室、檔案室、食品房、制藥或膠片車間、特種玻璃制造、糧食、木材等的除濕干燥和高濕空間的除濕
了解詳情
調溫除濕機用蒸發器來給空氣降溫除濕,并回收系統的冷凝熱,彌補空氣中因為冷卻除濕時散失的熱量,是一種高效節能的除濕方式,已經廣泛應用于國防工程、人防工程、煙草及石化行業、地鐵車站、航天領域凈化工程、實驗室、電訊器材室、檔案室、食品房、制藥
了解詳情
調溫除濕機用蒸發器來給空氣降溫除濕,并回收系統的冷凝熱,彌補空氣中因為冷卻除濕時散失的熱量,是一種高效節能的除濕方式,已經廣泛應用于國防工程、人防工程、煙草及石化行業、地鐵車站、航天領域凈化工程、實驗室、電訊器材室、檔案室、食品房、制藥或膠片車間、特種玻
了解詳情
調溫除濕機又名恒溫除濕機用蒸發器與冷凝器來對空氣進行處理,從而達到調溫除濕的目的。其工作過程中回收系統的冷凝熱,來彌補空氣中因為冷卻除濕時散失的熱量,是一種高效節能的除濕方式,已經廣泛應用于國防工程、人防工程、煙草及石化行業、地鐵車站、航天領域凈化工程
了解詳情
調溫調濕機,智能控溫控濕機技術動態眾所周知,溫濕度是日常生活中、工業生產中以及物流倉儲、科研實驗中的一大重要的環境指標;在工業廠房車間、實驗室等工作場所,保持適宜的溫濕度可以保證生產、實驗在標準下正常運行,
了解詳情
調溫除濕器利用蒸發器對空氣進行冷卻、除濕,回收系統的冷凝熱,彌補冷卻除濕在空氣中損失的熱量,是一種節能的除濕方法,廣泛應用于糧食、木材等除濕干燥、高濕空間除濕及溫度控制中。調溫除濕機用蒸發器來給空氣降溫除濕,并收回體系的冷凝熱,彌補空氣中由于冷卻除濕時流
了解詳情
調溫調濕機組中的除濕機包括兩種,為風冷管道除濕機和水冷管道調溫除濕機,制冷循環由壓縮機、四通閥、室外換熱器、室內第二換熱器、室內第一換熱器等設備組成,下面來具體談談關于除濕機的問題。調溫除濕機用蒸發器來給空氣降溫除濕,并回收系統的冷凝熱,彌補空氣中因為冷卻除濕時散
了解詳情
調溫調濕機溫濕度自動控制技術介紹:調溫調濕機,又叫恒溫恒濕機,或者是恒溫恒濕空調,恒溫恒濕機組,恒溫恒濕系統,名稱有很多,但是功能只有一個,那就是對生產環境的溫度和濕度進行控制,確保溫濕度不會變化,或者是變化不大。這種設備可以制冷也可以制熱,可以加濕也可以除濕,簡單的說就是集中了除濕機、加濕機以及空
了解詳情
工業的調溫功能工業上用的除濕機分為調溫式和不調溫式的兩種。現在我們就說說這種調溫式除濕機的功能。工業上用的調溫除濕機有三種類型,一種是通過降溫除濕的,一種是通過升溫除濕的,還有一種是通過調濕除濕的除濕機。先說升溫式的除濕機,這種除濕機里面的水冷式冷凝器不參與工作,只是使用風冷式
了解詳情
調溫型除濕機適合高溫環境中使用,在一些溫度變化比較大,溫度比較高的場合下,使用調溫型除濕機的話,對于降低環境內溫度和濕度會有比較顯著和良好的效果,給我們的生產和工作帶來的極大的方便。調溫型除濕機的濕裝置由除濕蛋和承座組成。所謂除濕蛋,就是
了解詳情
調溫型除濕機具有自動調控溫濕度的功能,還可以制冷除濕,特別適合用于變化比較大的高溫高濕的環境,能有效降低室內濕度,還可以自動檢測濕度,帶來了很大的便利。1.調溫型除濕機具有多種功能,能適應變化較大的高溫高濕的環境。調溫型除濕機能自動調溫、降溫除濕功能,調溫除濕機集除濕,制冷功效于一身,且制冷能力可調
了解詳情
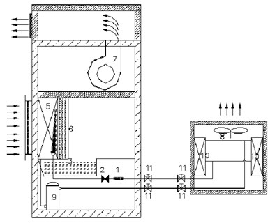
1.2.2第二模式(圖4)在該模式中,從壓縮機出來的制冷劑分成兩路:一路進入冷凝器C2,另一路進入旁通路,而后通過冷凝器C2的制冷劑和旁通路的制冷劑匯合后再通過冷凝器C1。在管路上安裝一電子三通調節閥來調節通過冷凝器C2和旁通路的制冷劑流量。當截止通過C2的制冷劑,讓所有的制冷劑通
了解詳情
調溫除濕機適用于高溫環境。在溫度變化很大且溫度相對較高的某些情況下,調溫除濕機將對降低環境中的溫度和濕度具有顯著的良好效果。我們的生產和工作帶來極大的便利。調溫除濕機的濕裝置由除濕蛋和軸承座組成。所謂的除濕蛋是多孔,通風良好的陶瓷殼。除濕雞蛋的內部是一個裝有吸收空氣和水蒸氣的物質的容器。部分涂有濕度
了解詳情
摘要分析調溫除濕機中雙冷凝器不同連接模式下的不同調溫方式和調溫效果,并對各模式進行比較。關鍵詞調溫除濕串聯并聯電子調節閥TheanalysisofdifferentconnectmodesoftwocondensersofdehumidifierwithtemperatureadjustmentAB
了解詳情
調溫型除濕機是一種除濕時可在一定范圍內調節出風溫度的冷凍式除濕機。調溫型除濕機出風溫度一般不能在最低值到最高值之間連續變化,即有部分溫度范圍是出風溫度無法達到的。在調溫除濕模式下,對于傳統的調溫型除濕機而言,即使室外風冷冷凝器的風機或水冷冷凝器水
了解詳情
調溫除濕設備用蒸發器來給空氣降溫除濕,并回收系統的冷凝熱,彌補空氣中因為冷卻除濕時散失的熱量,是一種高效節能的除濕方式,已經廣泛應用于國防工程、人防工程、煙草及石化行業、地鐵車站、航天領域凈化工程、實驗室、電訊器材室、檔案室、食品房、制藥或膠片車間、特種玻璃制造、糧食、木材等的除濕干燥
了解詳情
1:在搬運和安裝過程中,其傾斜度不得超過45。更不允許倒置。應輕起輕放,防止損壞機組和擦傷表面。2:本機組安裝地基要求水平,元特殊防震要求,只要墊100mm厚木板或10ram厚普通工業橡膠即可。機組四周離墻不少于1.0m,以
了解詳情
作為加濕器企業的管理者,創意是成功的關鍵。那么為什么需要創意呢?《易經》告訴我們:這個世界變是唯一不變的規律。現在的市場營銷已經過了墨守成規的時代了,而人云亦云,鸚鵡學舌的做法也早已被市場所淘汰。那么加濕器廠家在市場競爭中就必須要求營銷人員創意性的開展工作,企業經營的最佳策略是什么呢?就是要把創新的
了解詳情
除濕器價格永遠是客戶選擇產品的重要因素,在當今社會,高價與成交似乎很難形成一體,同時出現。如果除濕器的好質量,廉價格,高口碑,應用廣,銷售工作自然很好做。而實際情況卻是恰恰相反,所謂“魚與熊掌不可兼得”,似乎價格與質量永遠都只能成正比,因此客戶總是在質量和價格之間徘徊,以求找到兩者之間的平衡點,可這
了解詳情
在這個詭譎多變的時代,除濕機廠家必須習慣于在不同的環境和情勢下競爭,這增加了對除濕機廠家適應能力和發掘機會能力的要求。毫無疑問,沒有什么競爭優勢是A的,成功也只是暫時的,所以除濕機廠家永遠都需要保持高度的反應能力。當戰略變得愈來愈彈性化并且充滿變數,人才管理體系也必須隨之而動。如何使員工培訓達到預期
了解詳情